1824 wird das erste Schulgebäude Oberföhrings in der Muspillistraße errichtet. Das Gebäude hat ein einziges Klassenzimmer, in dem auch die Kinder aus Daglfing, Johanneskirchen und Englschalking zur Schule gehen. Winters wie Sommers wandern die Kinder der 25 Familien eineinhalb (!) Stunden zur Oberföhringer Schule. Erst 1896 erhalten sie in der Schnorr-von-Carolsfeld-Straße 9 ein eigenes Schulgebäude. Das Schulhaus in der Muspillistraße tut noch bis 1959 seinen Dienst. Heute beherbergt das unter Denkmalschutz stehende Gebäude das »Muspilli«, einen Kinder- und Jugendtreff des städtischen Kreisjugendrings mit einer angeschlossenen Jugendberatungsstelle.
- Start
- Architektur
- Schulen im Münchner Nordosten
- Oberföhringer Schule (ehemalig)





Oberföhringer Schule (ehemalig)
Muspillistraße 27
Oberföhring-St. Emeram
Weiterführende Informationen
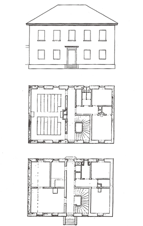
1820 wurde ein Schulhausneubau für Oberföhring bewilligt. Der bürgerliche Stadtbaumeister Josef Höchl aus München wurde beauftragt, einen Bauplatz für die Schule in Nähe des Pfarrhofes auszusuchen und einen Plan anzufertigen. Die Baumaterialien sollten, soweit noch brauchbar, von der abgebrochenen Filialkirche St. Emmeram verwendet werden. Die Gemeinde Oberföhring hatte für die Kosten des Abbruchs und Neubaus von 600 Gulden aufzukommen und die Gemeindemitglieder mussten unentgeltlich Fuhren leisten und als Handlanger arbeiten.
Im letzten Viertel des 19. Jahrhunderts wurde dieser Bau zu klein. Die Unterrichtsräume (ein Klassenzimmer) und je ein Abort für Jungen und Mädchen befanden sich im ersten Stock. Im Erdgeschoss war die Lehrerwohnung mit angebauten Stall. 1874 wurde die Schule deshalb vergrößert, der Anbau befindet sich östlich, auf dem ehemaligen Schulgarten. Dennoch wurden für die stetig wachsende Zahl von Kindern der großen Oberföhringer Gemeinde auch diese Räumlichkeiten bald wieder zu eng und so erhielten 1896 die Kinder aus Daglfing und Englschalking ein eigenes Schulhaus in der Schnorr-von-Carolsfeld-Straße 9, was ihren Schulweg erheblich verkürzte.
1900 wird im Garten der Schule ein Wasserturm errichtet, der lange Zeit das Bild des Dorfes optisch prägt. Erst 1962 wird er abgerissen.
Nach dem Zukauf des alten Hofs, „beim Kreppenschneider“ (Muspillistraße 23) als Schulnebengebäude im Jahr 1911/1912, standen den Oberföhringer Kindern drei Schulsäle zur Verfügung. Im Nebenhaus wurden die Klassen 1 und 2 von der Lehrerin Rosa Schiegl unterrichtet, sie hatte dort auch eine Dienstwohnung. Im alten Schulhaus wurden in den zwei Schulsälen die 3. und 4. Klasse und die 5. und 6. Klasse von Hauptlehrer Michael Schletzbaum und dem Hilfslehrer Franz Kalb unterrichtet.
1940 kaufte das Staatsministerium des Innern das Schul- und das Schulnebengebäude samt Wasserturm, um ein Wasserbau-Forschungsinstitut zu errichten, die „Arno Fischer Forschungsstätte“. Über Arno Fischer, einen ehemaligen Fahrradhändler und gelernten Maschinenbauer, schrieb der „Völkische Beobachter“ am 13. Oktober 1938, dass er „ein alter Mitkämpfer des Führers“ und seit 1930 in der NSDAP gewesen sei. Fischer war 1933 ehrenamtlicher Stadtrat und später Betriebsbaurat in Coburg und baute in dieser Zeit eine Wasserkraftanlage am Main. Später leitete er in Pommern das „Gauamt für Technik“, danach die technische Abteilung der Provinzialverwaltung. In dieser Zeit hat er das angeblich erste Unterwasserkraftwerk der Welt gebaut. Ab 1938 war er Ministerialrat im Bayerischen Staatsministerium des Inneren. Als Chef der Forschungsstätte verlegte Fischer 1943 seinen Betrieb in einen Vorort von Passau, da ihm wegen der Luftangriffe auf München der Boden zu heiß geworden war. Die Forschungsgesellschaft baute eine Baracke an das Schulnebenhaus an, in der sich nach Kriegsende noch Reste einer großen eisernen, in den Boden eingelassenen Anlage zur Prüfung von Unterwasserturbinen befand.
Nach dem Krieg diente das Schulnebengebäude als Ausweichquartier für ein Krankenhaus, das im Bernheimer Schlösschen untergebracht war. Das Schulgebäude selbst stand weiterhin unter großer Raumnot zum Unterricht der Oberföhringer Kinder zur Verfügung. Ab 1947 bemühte man sich, die beiden Schulgebäude wieder in den Besitz der Stadt zurückzuführen.
1951 machte die Firma Fischer ein Verkaufsangebot für die Schulhäuser und im Jahr 1962 kaufte die Stadt München den Besitz um 90.000 DM zurück. Heute steht das Gebäude unter Denkmalschutz, das Schulnebengebäude wurde abgerissen und durch einen Neubau ersetzt. Die heutige Grundschule Oberföhrings befindet sich an der Oberföhringer Straße, sie wurde 1959 errichtet.
Literatur:
- Karin Bernst, „Oberföhring. Das Dorf und seine Bewohner im 19. Jahrhundert“, München 2000.
- Gschwandtner, Martin: „Es war einmal ein >Kohlenklau<. Technik unter dem Joch der NS-Diktatur. Arno Fischer und der Irrweg der Unterwasserkraftwerke in der Zeit von 1933-1945“, GRIN-Verlag München 2010.